Xin chào các bạn!
Nguyễn Ngọc Thư
Số bản vẽ: 22
Ngày tham gia: 17-12-2022
Danh sách bản vẽ
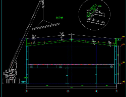
Nhà xưởng 1 tầng, kích thước 21x72m, không cột giữa, đầy đủ bản vẽ kiến trúc, kết cấu
0
Bản vẽ chung cư 7 tầng, kích thước 14x21m, full kiến trúc, kết cấu, điện
0
Nhà phố 5 tầng, kích thước 4x17m, full bản vẽ kiến trúc, kết cấu
0
Nhà phố 6 tầng, kích thước 5x14m, nhà phố 6 tầng - full kiến trúc, kết cấu, dự toán
0
Nhà Liền kề 3 tầng, kích thước 10.5x13.5, full kiến trúc, kết cấu, dự toán, phối cảnh
0
Biện pháp thi công nhà thép 2 tầng , đầy đủ bản vẽ và thuyết minh
0
Nhà xưởng 1 tầng, nhịp 18m, cầu trục 3 tấn, full kiến trúc, kết cấu
2
Nhà Phố 3 tầng, kích thước 4.2x11m, full bản vẽ kiến trúc, kết cấu,điện nước, dự toán
0