Tìm kiếm bản vẽ nâng cao
Danh sách bản vẽ
Giao trình tính toán và thiết kế kết cấu thép - Phạm Huy Chính
0
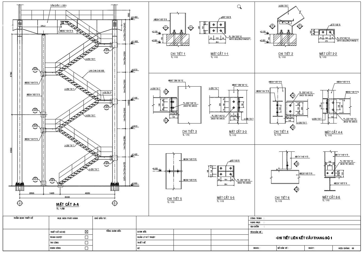
Bản vẽ chi tiết các mẫu cầu thang thép bao gồm thang bộ, thang thoát hiểm, thang xoắn, thang lồng...
0
Nhà phố 4 tầng, 4x15m, đầy đủ kiến trúc, kết cấu, điện nước
0
Bản vẽ biệt thư lâu đài 8x12m, 3 tầng, full các bộ môn ( kiến trúc, kết cấu, điện, nước)
0
Bản vẽ cao ốc văn phòng 22.6x16.6m, 10 tầng, full các bộ môn KT, KC, ME, biện pháp thi công
0
NHÀ ĐỂ XE Ô TÔ - CAR PARKING - FULL KIẾN TRÚC, KẾT CẤU, MÓNG
1
Bản vẽ trạm xăng kết cấu thép 13.6x18m, đầy đủ các hạng mục phụ và hạng mục chính
0
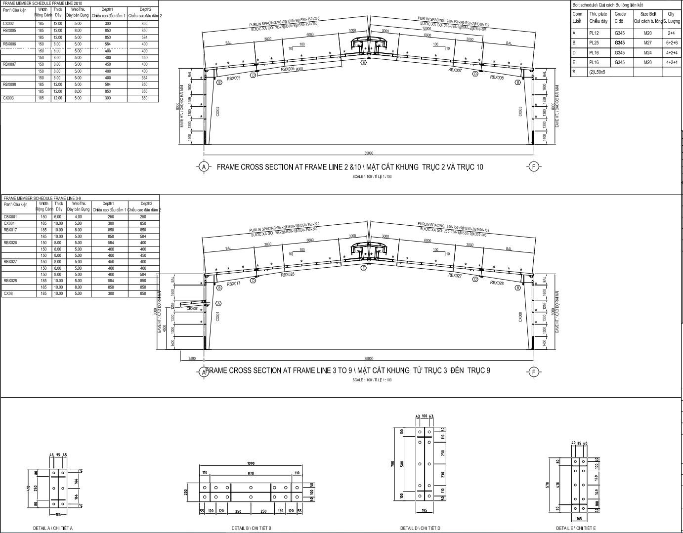
Bản vẽ nhà xưởng 46x99m, không cột giữa, full kiến trúc, kết cấu
1
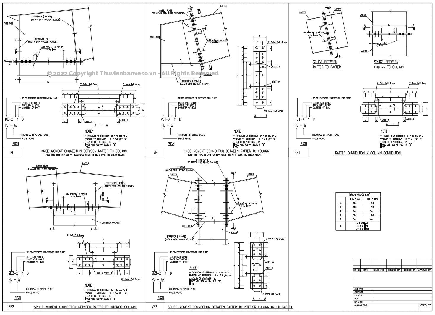
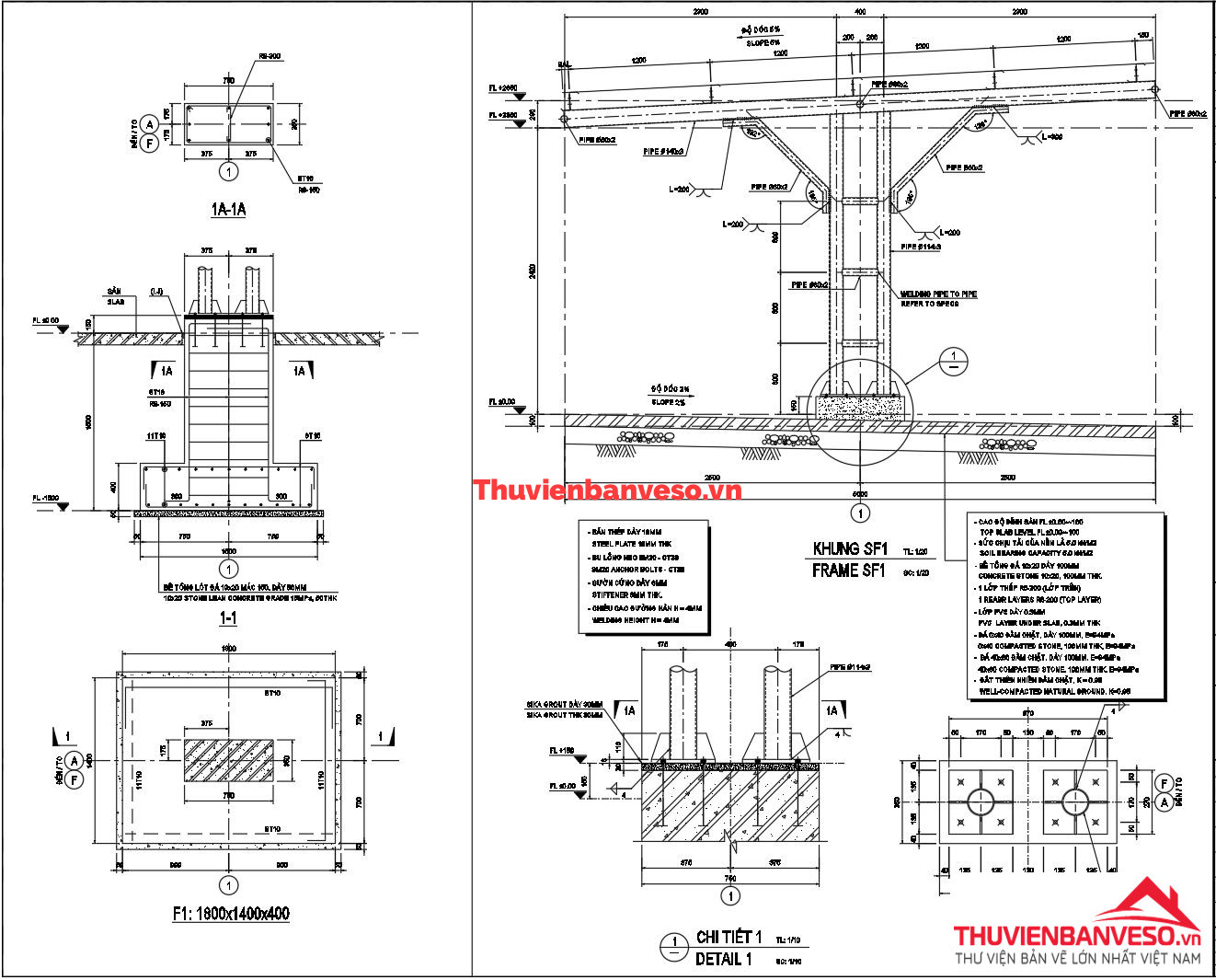
Bản vẽ biển quảng cáo kích thước 5x8m, cao 12m, full chi tiết kết cấu móng, kết cấu thép
0
Bản vẽ bể nước ngầm 8x20m, cao 3.15m, full kết cấu chi tiết
0
Biện pháp thi công lắp dựng cẩu tháp, đầy đủ trình tự các bước thi công
0
Bản vẽ cầu thang bộ bê tông cốt thép, full cấu tạo thép rebar
0
Bản vẽ bể nước ngầm 700m3 ( kích thước 10x15m, cao 5m)
0
Bản vẽ nhà để xe ô tô, kết hợp showroom trưng bày ô tô, tòa Toyota Thanh Xuân
0
Bản vẽ siêu thị điện máy HC - tp. Vinh (Nghệ An), full kiến trúc, kết cấu
0
Hồ sơ thiết kế chung cư Marina plaza - Long Xuyên ( full KT, KC)
0